Collégiale Sainte-Croix de Liège
Click on the photos to enlarge.

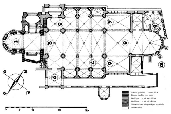
Collegiale Sainte Croix de Liege, plan phasé del. D.
Morel d’après M. Piavaux,
journals.openedition.org

Collegiale Sainte Croix de Liege,
Plan établi par MM.
Armand DELHAES et Christian BREVERS, architectes,
chokier.com

Collegiale Sainte Croix de Liege, Willem and Johannes
Blaeu —
Gravure du XVIeme siècle Université de Leyde, Wikipedia

Collegiale Sainte Croix de Liege, Remacle Le Loup — Chokier, Wikipedia
Link > Wikipédia (fr)
Link > Wikipedia (de)
Link > Wikipedia (nl)
Link > www.fabrice-muller.be (fr)
Link > Foto Marburg > Orte > Belgien > Lüttich > Sakralbau > St. Croix (Photos)
Link > Flickr images tagged with Sainte-Croix Liège
retour > www.Gotik-Romanik.de < back
http://www.besucherzaehler-homepage.de/