Book illumination (dated 1079-1096), British Museum, London, arthisteric.blogspot.de.jpg
Book illumination (dated 1079-1096),
 British Museum, London,
arthisteric.blogspot.de
Chor von O, Foto Marburg.jpg
Chor von O, Foto Marburg
Chor von SO, Foto Marburg.jpg
Chor von SO, Foto Marburg
Chor von SW, Foto Marburg.jpg
Chor von SW, Foto Marburg
Chorumgang, Foto Marburg.jpg
Chorumgang, Foto Marburg
Église Saint-Martin-des-Champs, le roi Philippe Ier et la consécration de l'église par les moines de Cluny. Manuscrit latin (1225-1275).jpg
Église Saint-Martin-des-Champs,
 le roi Philippe Ier
 et la consécration de l'église
 par les moines de Cluny.
 Manuscrit latin (1225-1275)
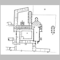
Grundriss nach Eugene Viollet-le-Duc, Wikipedia.jpg
Grundriss nach
Eugene Viollet-le-Duc,
 Wikipedia
Holzstich gezeichnet von K. Fichot. 1881, alte-originale-stiche.com.jpg
Holzstich gezeichnet von K. Fichot.
 1881, alte-originale-stiche.com
Paris (75), prieuré Saint-Martin-des-Champs, chevet de l'église en 1913.png
Paris (75), prieuré
 Saint-Martin-des-Champs,
 chevet de l'église en 1913
Paris, Église Saint-Martin-des-Champs,   mcid.mcah.columbia.edu.jpg
Paris,
Église Saint-Martin-des-Champs,
 mcid.mcah.columbia.edu
Paris, Saint-Martin-des-Champs (Umzeichnung von Gall nach Congr. archéol. 1919).jpg
Paris,
Saint-Martin-des-Champs
Umzeichnung von Gall
nach Congr. archéol. 1919
Paris, Saint-Martin-des-Champs, plan Henri Deneux, 1913, La partie sud-est du déambulatoire et le clocher sont restaurés par Henri Deneux entre 1913 et 1916 (Wikipedia).jpg
Paris, Saint-Martin-des-Champs,
plan Henri Deneux, 1913,
La partie sud-est
du déambulatoire
 et le clocher sont restaurés
par Henri Deneux entre 1913
et 1916 (Wikipedia)
Paris, Saint-Martin-des-Champs.jpg
Paris, Saint-Martin-des-Champs
Plan de Paris vers 1550 abbaye-St-Martin-des-champs, Saint-Martin-des-Champs et son enclos sur le plan de Truschet et Hoyau (vers 1550) avec l'échelle placée Cour Saint-Martin.jpg
Plan de Paris vers 1550
abbaye-St-Martin-des-champs,
Saint-Martin-des-Champs
et son enclos sur le plan de Truschet
 et Hoyau (vers 1550)
 avec l'échelle placée Cour Saint-Martin
Postcard.jpg
Postcard
Prieuré Saint-Martin-des-Champs, clocher de l'église avant 1913.png
Prieuré Saint-Martin-des-Champs,
clocher de l'église avant 1913
Prieuré Saint-Martin-des-Champs, plan de l'abside, H. Deneux,.png
Prieuré Saint-Martin-des-Champs,
 plan de l'abside, H. Deneux
Refectory, Photo by Jacques Mossot on Structurae.jpg
Refectory,
Photo by Jacques Mossot
on Structurae
Saint-Martin-des-Champs et son enclos sur le plan de Truschet et Hoyau (vers 1550).jpg
Saint-Martin-des-Champs
 et son enclos sur le plan de Truschet
et Hoyau (vers 1550).jpg
Saint-Martin-des-Champs, Fig. 9 Romanesque apse, (London, British Library).jpg
Saint-Martin-des-Champs,
 Fig. 9 Romanesque apse,
(London, British Library).jpg
Saint-Martin-des-Champs, on arthisteric.blogspot.de.jpg
Saint-Martin-des-Champs,
on arthisteric.blogspot.de.jpg
Saint-Martin-des-Champs, plan des fouilles de l’église (C. Brut, Commission du Vieux Paris), journals.openedition.org.jpg
Saint-Martin-des-Champs,
plan des fouilles de l’église
(C. Brut, Commission du Vieux Paris),
 journals.openedition.org.jpg
Section mappinggothic.org.jpg
Section mappinggothic.org.jpg